クルマ不動産

クルマ不動産

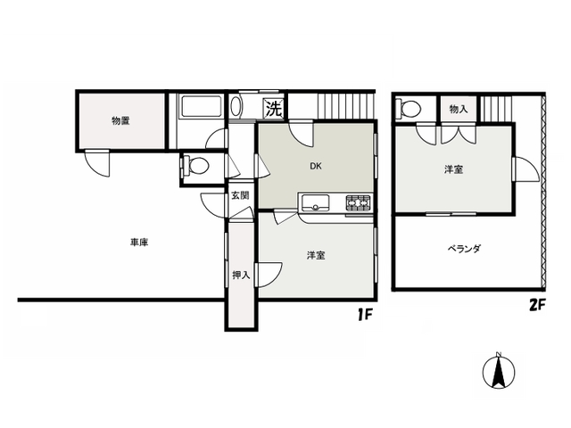
賃貸(貸家)物件一覧 > 佐谷田貸家 ホワイトハイツ

貸家  

設備 エアコン、公営水道、LPG、浄化槽
特記 ◎電気代無料
*浄化槽清掃管理は貸主負担
ペット不可。楽器不可。
備考保証会社に加入していただきます

※ 掲載されている全ての不動産情報・画像・文章・構成等についての無断転載、無断使用は固くお断りします。サイト内のコンテンツについての著作権は当サイトに帰属します。 尚、掲載物件の内容及び画像、間取図等は、全て現況を優先とします。