クルマ不動産

クルマ不動産

売買物件一覧 > 売地詳細

売地

設備公営水道、LPG、浄化槽
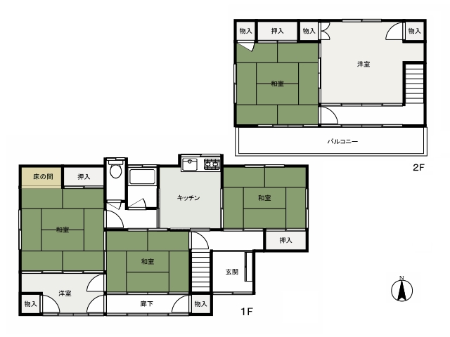
備考◎古家付きの現況渡し
(木造平家建/63.73m²/*2Fに未登記部分37.19m²あり/S.44.11築)
*都市計画法第34条第12号 ※不動産のFAQの該当欄をご参照ください

※ 掲載されている全ての不動産情報・画像・文章・構成等についての無断転載、無断使用は固くお断りします。サイト内のコンテンツについての著作権は当サイトに帰属します。 尚、掲載物件の内容及び画像、間取図等は、全て現況を優先とします。