| 所在地 | 熊谷市鎌倉町 |
|---|---|
| 交通 | JR高崎線「熊谷」駅 徒歩11分 秩父鉄道「上熊谷」駅 徒歩3分 |
| 土地面積 | 278.01m²(84.09坪) ※約21m²のセットバック面積を含む |
| 建物面積 | 909.76m²(275.20坪) |
| 築年月 | 平成1年7月築 |
| 設備 | 公営水道、都市ガス、本下水、エレベーター(一般用・業務用) |
|---|---|
| 備考 | 料亭仕様の一棟ビル。屋上庭園あり。 |
| 都市計画 | 市街化区域 |
|---|---|
| 用途地域 | 商業地域 |
| 土地権利 | 所有権 |
| 建蔽率/容積率 | 80% / 400% |
| 法令上の制限 | 準防火地域/景観誘導地区/駐車場整備地区 |
| 道路 | 北東側約6m公道、南東側約1.8~2.7m公道 |
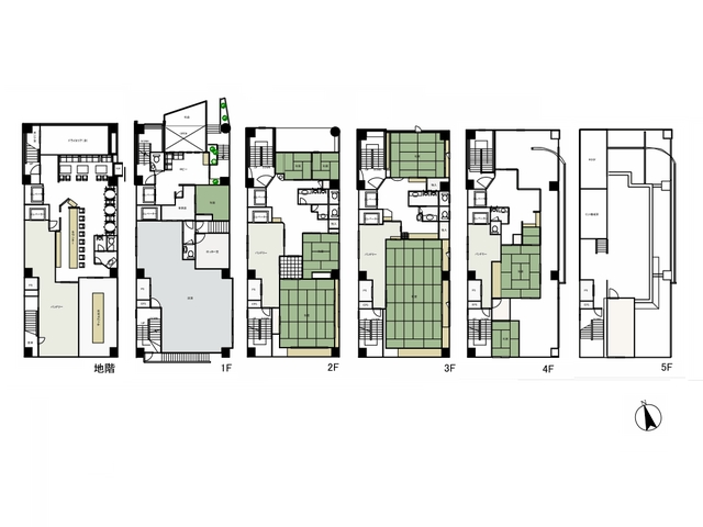
| 建物構造 | 鉄筋コンクリート造5階建(地下1F付) |
|---|---|
| 間取り | 全階料亭仕様ビル |
| 駐車場 | なし |
| 現況 | 空 |
| 引渡日 | 相談 |
| 取引形態 | 仲介 |