| 所在地 | 羽生市南5丁目 |
|---|---|
| 交通 | 東武伊勢崎線・秩父鉄道「羽生」駅 徒歩13分 |
| 土地面積 | 403.00m²(121.90坪) |
| 建物面積 | 581.16m²(175.80坪) |
| 築年月 | 平成2年7月築 |
| 設備 | 公営水道、本下水 |
|---|---|
| 備考 | 営業所、事務所、各種お教室に |
| 都市計画 | 市街化区域 |
|---|---|
| 用途地域 | 近隣商業地域 |
| 土地権利 | 所有権 |
| 建蔽率/容積率 | 80% / 200% |
| 法令上の制限 | |
| 道路 | 北側約12m(約1.9m歩道付)公道、西側約8m公道 |
| 建物構造 | 鉄筋コンクリート造2階建 |
|---|---|
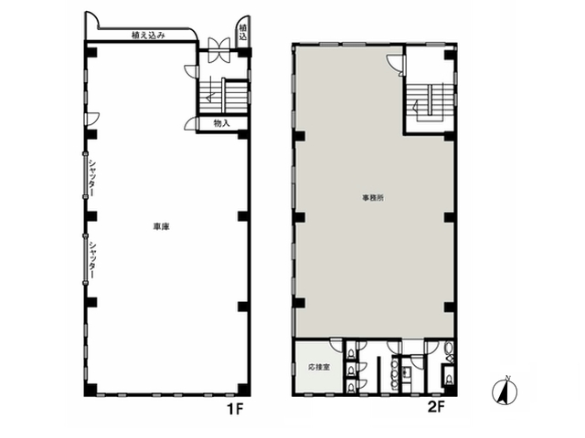
| 間取り | 1F:駐車場/2F:事務所 |
| 駐車場 | あり |
| 現況 | 空 |
| 引渡日 | 相談 |
| 取引形態 | 仲介 |